
RTM Homes
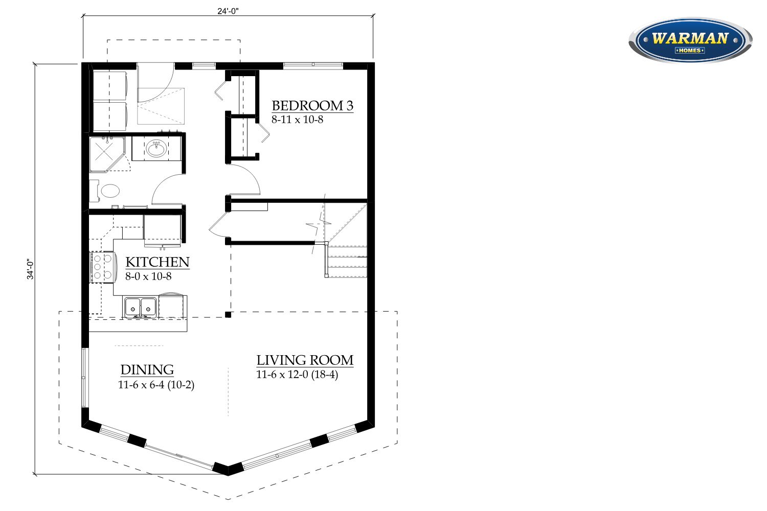
RT2529 - The Grizzly
Bathrooms: 2
Year Built: 2025
Structure Type: Ready To Move
Floor Area: 1170
Bedrooms: 3
Roofing: IKO Dynasty Performance Shingles
Features & Amenities:
- 1170sqft Two Storey RTM
- 3 Bedrooms, 2 Bathrooms
- Vinyl Siding on Exterior
- Soft Close on all Cabinetry
- LED Light Bulbs Throughout
- 10 Year New Home Warranty
- Price includes Vinyl plank in Living Room, Dining Room, Kitchen, Hallway and Side Entry




