
RTM Homes
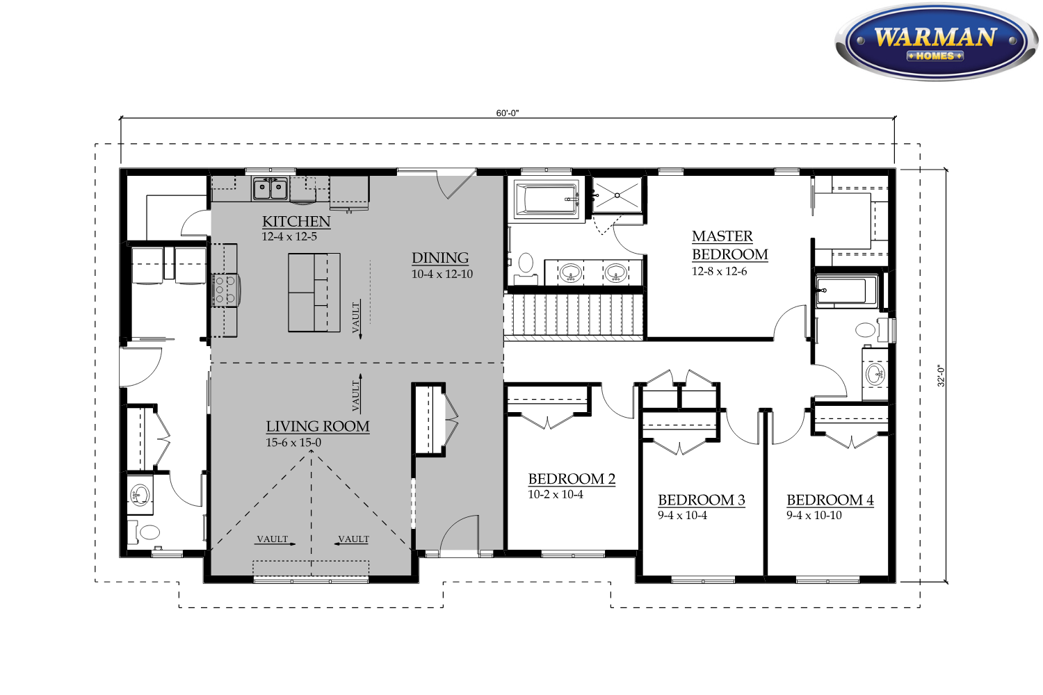
RT2434 - Mt. Chelsea
Bathrooms: 2.5
Year Built: 2025
Structure Type: RTM
Floor Area: 1873
Bedrooms: 4
Roofing: IKO Dynasty Performance Shingles
Features & Amenities:
- 1873sqft
- 4 Bedrooms, 2.5 Bathrooms
- Main Floor Laundry
- Vaulted ceiling in living room
- Garden door off dining area
- Island in kitchen with extended ledge
- Walk-in pantry with shelving
- Soft-close cabinetry throughout
- Master ensuite includes double vanity, soaker tub, and tiled shower
- Quartz countertops in kitchen, bathrooms, and laundry
- Tiled Backsplash in kitchen
- Undermount Sinks Throughout
- Vinyl Plank Flooring Throughout
- All Plumbing Fixtures Upgraded to Black
- Fypon Beam in Center Vault
- LED Light Bulbs Throughout
- Vinyl siding on exterior
- 10 Year New Home Warranty




