
RTM Homes
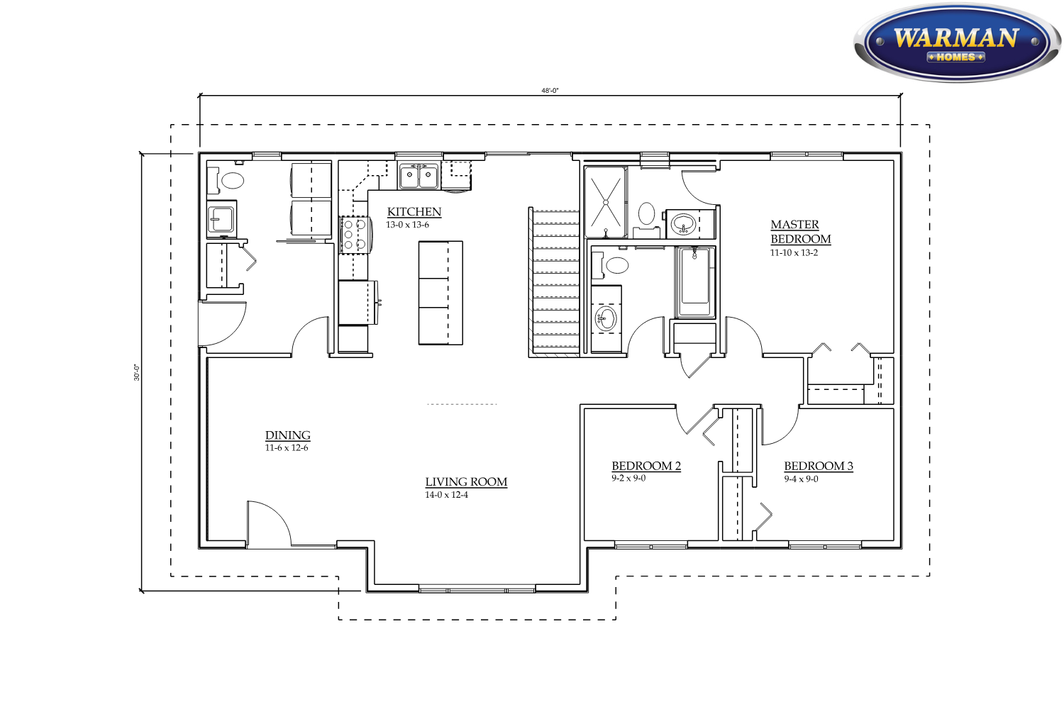
RT2515 - Mt. Rae
Bathrooms: 2.5
Year Built: 2025
Structure Type: RTM
Floor Area: 1341
Bedrooms: 3
Roofing: IKO Dynasty Performance Shingles
Features & Amenities:
- 1341 sqft
- Cottage Roof
- 3 Bedroom, 2.5 Bathrooms
- 8′ Ceilings Throughout, with 10′ Ceiling in Living Room
- Vinyl Siding and Stone on Exterior
- 3 pc. Ensuite in Master Bedroom (5′ Shower)
- Island c/w Extended Ledge
- Soft Close on all Cabinets
- LED Light Bulbs Throughout
- 10 Year New Home Warranty



